PCR实验室平面布局、通风空调系统设计要点分析
时间: 2021-06-11 浏览次数:333
PCR实验室平面布局、通风空调系统设计要点分析
一、PCR实验室平面布局设计要点分析
1、平面功能分区要点分析
根据《临床基因扩增检验实验室基本设置标准》1.1条的要求,PCR实验室一般由试剂储备区、标本制备区、扩增区、扩增分析区4个区域组成。
PCR实验室区域的设置并不是一成不变的,以下几种情况需要说明:
①如果样本在扩增之前需要粉碎处理,则需要增加一个区域用于样品的粉碎;
②如果采用实时荧光PCR法,则扩增区和分析区可以合并为一个区;
③如果采用全自动化PCR分析仪,则标本制备区、扩增区和分析区可以合并为一个区。
以4个区域的实验室设置进行设计要点分析,如图1所示。

图1 典型PCR 实验室工艺平面图
2、实验室功能与设备设计要点分析
(1)试剂储备区
该区域主要完成试剂和主反应混合液的储存、配制和封装工作。所有运送到该区域的试剂和材料不应经过其他区域,试剂和原材料应在本区内储存和制备。本区域的气压应相对外界保持正压。该区域的设备主要是冰箱、天平、混匀器、低速离心机、加样器、可移动紫外灯等。由于该区域有多种试剂,所以“安全”应是平面设计首要考虑因素,平面设计时应保持通风流畅、逃生畅通。首先,实验台布置在房间的两侧,中间的过道全部通向走廊便于疏散。同时根据国际人体工程学的标准,实验台与实验台通道设计为1500mm,中间的通道可满足两边坐人中间过人的要求。
(2)标本制备区
该区域的功能是样本的保存、核酸提取和贮存、样本加入扩增反应管和测定DNA的合成。样本应直接运送至该区并储存在本区内,不得经过其他区域。对于气流压力的控制,由于在本区内加样操作可能产生气溶胶,为避免气溶胶扩散出去对外界造成污染,本区应对外界保持负压;同时本区相对于扩增反应混合物配制和扩增区以及扩增产物分析区为正压,以避免从邻近区进入本区的气溶胶污染。
该区域的设备主要是生物安全柜、加样器、台式高速离心机、台式低速离心机、水浴锅、冰箱、混匀器和可移动紫外灯等。其中需要注意的是,生物安全柜最好选用B2型,这种生物安全柜所有的吸入气流和垂直气流都经过高效过滤器过滤后排到室外,不再进入生物安全柜循环或者返回该区域,这种生物安全柜可避免提取核酸在柜内反复循环,造成标本之间交叉“污染”,出现假阳性结果。
(3)扩增区
该区域的功能是DNA扩增和扩增片段的测定。此外,反应混合液(来自试剂贮存和制备区)制备成反应混合液和已制备的DNA模板(来自标本制备区)的加入等也可在本区内进行。对于气流压力的控制,相对于邻近区域为负压,以避免气溶胶从本区漏出。为避免气溶胶所致的污染,应尽量减少在本区内不必要的走动。个别操作如加样等应在超净台内进行。
该区域的设备主要是核酸扩增热循环仪、加样器、超净台等。其中热循环仪的电源应专用,并配备一个稳压电源或UPS,以防止由于电压的波动对扩增测定的影响。
(4)分析区
该区域的功能是扩增产物的分析。该区域可能会用到某些可致基因突变的有毒物质,应特别注意实验人员的安全防护。对于气流压力的控制,该区域是PCR实验的最后一步,压力应为最低,相对于邻近区域为负压,以避免气溶胶从本区漏出。为避免气溶胶所致的污染,应尽量减少在本区内的不必要的走动。
该区域的设备主要是加样器、电泳仪(槽)、电转印仪、杂交炉或杂交箱、水浴箱、DNA测序仪、酶标仪和洗板机等。
3、人流与物料流线设计要点分析
进入实验室区域工作人员应该按照以下路径:走道→缓冲间→实验区
工作人员退出实验室的路径为:实验区→缓冲间→走道
进入各个区域必须严格按照单一方向进行,不同的工作区域使用不同的工作服(例如不同的颜色)。工作人员离开时,不得将工作服带出。这种人员的单向流动可以降低因人员的流动带来的交叉污染风险。
所有的物品进入实验区必须经过双扉互锁传递窗,利用传递窗消毒后才可进入,实验室内所有物品也必须经过传递窗才可以传递到实验室以外的清洁公共区。这种物品有组织的单向流动可以降低物品的差错和混淆的风险。
二、PCR实验室通风空调系统设计要点分析
1、温湿度需求分析
不同于血液制品、疫苗等有低温低湿洁净区域的需求(如2~8℃,≤35%,C级/D级),PCR实验室一般来说对温湿度没有严格要求,考虑实验人员的人体舒适性,环境温湿度的设计参数控制在表1所示的范围内。

2、空气过滤及气流组织分析
由于PCR实验室在加样操作过程中可能产生气溶胶,为避免气溶胶扩散出去对外界造成污染,同时为了避免各房间之间通过风管系统交叉污染,实验室建议采用全新风系统。新风经热湿处理及三级(初效+中效+高效/亚高效)过滤后送入室内;各房间排风口单独设置高效或亚高效过滤器。
风量计算上,通常我们采用缝隙法来计算房间维持一定压差时所需要的排风量或送风量。缝隙法计算公式如下:
式中 ΔP=压差,Pa ; ρ =空气密度,取1.2 kg/m³; V =风量,m³/h ;A =根据缝隙宽度计算的泄漏面积,m² ;μ =数,取0.72。
由风量守恒可知:
V送风 -ΔV = V排风
式中 ΔV —— 压差渗透风量,当房间维持正压时,该值为正值; 当房间维持负压时,该值为负值。
当房间无工艺设备排风时,可通过换气次数(工艺操作间换气次数为12~15次/h,缓冲间6~8次/h)计算得出房间送风量,然后根据缝隙法得出房间排风量;当房间有工艺设备(如生物安全柜)排风时,比较设备排风量与满足换气次数所需送风量,取两者之间的较大值(一般情况下,设备排风量较大),然后可根据缝隙法得出房间送风量。根据以上计算风量为设计依据,由此可对新风机组、排风机组及附属的风管风口进行选型和计算。
气流组织上,PCR实验室空调系统通常采用上送下排式的非单向流送风方式。房间上部送风口尽量均匀布置,且与生物安全柜操作面或其他有气溶胶操作地点的正上方保持一定距离;房间下部利用室内排风夹道上设置的排风口排风,排风口底部距地面0.1m,排风夹道需设置于室内被污染风险最高的区域,排风口前面不应有障碍物遮挡。
3、压力需求及控制分析
根据实验流程,PCR实验室一般设有试剂储存和试剂准备区、标本制备区、扩增反应混合物配制和扩增区、扩增产物分析区等4个区域,每个区域均设置有独立的缓冲间。
根据《临床基因扩增检验实验室工作规范》,为满足洁污分流和防止交叉感染等要求,PCR实验室空气流向需遵循单一方向进行,即只能从试剂储存和试剂准备区→标本制备区→扩增反应混合物配制和扩增区→扩增产物分析区进行,PCR实验室通风空调设计要点即在于此:通过对房间的送回(排)风量进行控制,使房间按照工艺设计要求建立相应的压力梯度,从而防止污染物的进入或扩散。
另外,PCR实验室内通常有生物安全柜、通风柜等生产设备,这类设备排风量大且使用时间有间隔性,并不与空调系统运行时间一致,这就导致有这些设备的房间在设备启停的时候很容易失压,原本正常的压力梯度瞬间就破坏了。这正是PCR实验室空调系统设计的难点所在。
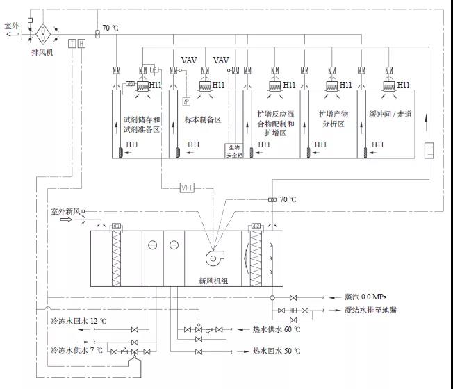
4、典型空调原理图分析
基于文中PCR实验室的工艺布局,设计出该类实验室的典型原理图,如图2所示。

图2 典型PCR实验室全空气新风系统控制原理图
PCR实验室全空气新风系统控制说明:
(1)温湿度控制
夏季:调节表冷盘管动态压差平衡调节阀的开度以控制室内温湿度,湿度优先;当为了调节室内湿度而造成温度过低时,开启加热盘管以控制室内温度。
冬季:调节加热盘管动态压差平衡电动调节阀的开度以控制室内温度,调节加湿器的开度以控制湿度。
(2)压力及变频控制
在空调系统各房间送风支管上设置压力无关型定风量阀,无工艺设备排风房间的排风支管上设置压力无关型定风量阀,从而恒定房间的风量以控制房间压力;在有工艺设备排风房间的排风支管上设变风量阀,根据房间内压差动作,以控制房间压力。需排风的工艺设备(如生物安全柜)排风支管上设变风量阀,根据设备开启度调节设备排风量。
根据重要房间送风管上定风量阀前后压差调节送风机变频器,保持压差恒定值。此恒定值须由现场实调确认,以保证所有定风量阀正常工作为准。
由以上原理图可知,PCR实验室压差控制难点在于有生物安全柜房间的压差控制以及维持生物安全柜负压环境以保证设备正常运行使用,这就要求系统采用的变风量阀有快速的反应能力。根据相关实验证明,当生物安全柜变风量阀响应时间≤1s且房间排风支管变风量阀响应时间≤3s时,不会对生物安全柜内的负压环境产生影响。同时,为了防止实验室房间开关门的瞬间失压导致房间压差为零,房间各定、变风量阀应预设风量偏移限制,以避免房间失压时引起送风量过小的情况发生。
从PCR实验室平面功能分区、试验室设备、人物流线、温湿度、气流组织、压力控制以及典型空调原理图进行了设计要点分析,提出了PCR实验室按照四个区域设计为宜,实验室设备的布置不仅考虑实用,同时要兼顾疏散,人物流要单向流动,温湿度满足人员舒适度即可,气流组织和压力控制保证气流单向流动防止气溶胶污染,同时在房间内设定、变风量阀应对生物安全柜开启和关闭时房间的压差扰动。

