安康市汉滨区妇幼保健院影像科建设项目——安健医特承建!
时间: 2022-06-28 浏览次数:191

汉滨区妇幼保健院“新院区”位于安康市城东(水景湾小区斜对面),占地20.5亩,建筑面积27779.63平方米,设置床位200张,是汉滨区唯一以妇女、儿童保健为主的妇幼专科医院。
新院区立足弥补汉滨妇幼专科医院空白点,重点打造产科、新生儿科、儿科、妇科等特色专科,同时建齐配强其相关辅助功能科室,配有64排CT机、数字化X线摄影系统、钼靶、四维超声及腹腔镜等先进大型医疗设备。本院区地理位置优越,交通便利(距安康东高速路口约500米,周边驻有汉滨区行政事务审批局、汉滨区档案馆、汉滨区高井中学等单位,毗邻吾悦广场、兴安府、水景湾等小区),必将带动汉滨妇幼健康事业高质量发展。新起点孕育新希望,盼您携手来起航!
《摘自医院公众号》
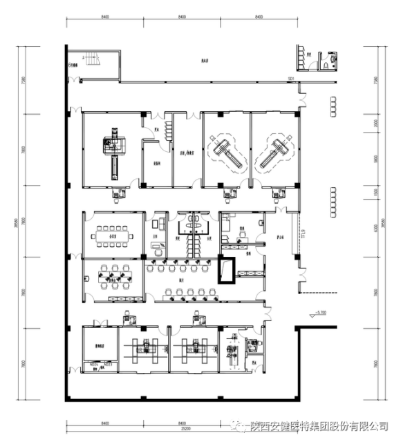
《影像科平面布局图》

我公司将严格遵守国家工程建设规范、技术规范,国家规定标准《GBZ 130—2020 放射诊断放射防护要求》对本项目进行设计及施工。我公司拥有完备的管理制度及施工管理运作程序,投入本工程的材料将使用一流的材质、加上一流的技术和不懈的努力,我们有坚定的决心来承担该项目,有充分的信心来出色地完成本项目施工任务。


往期项目回顾
汉滨区第三人民医院影像科——安健医特承建,现已竣工交付投入使用!
01 企业介绍
陕西安健医特集团股份有限公司,位于西安市灞桥区东方国际设计师产业园,主要为客户创建BT、PPP、BOT、BOO、EPC等多种医院整体建设模式;专业从事医院洁净手术部、ICU、CCU病房、血液病房、隔离病房、中心供应室、配液室、实验室等净化工程;医院信息化建设及智能化工程、消防工程、特种结构补强等工程的设计与施工;DSA/CT/DR/数字胃肠/骨密度/C型臂/SPECT/MR等机房射线防护及屏蔽装饰工程;医疗、工业等方面射线防护工程的设计与施工;核医学、同位素射线性污水处理工程;医用集中供氧系统及智能语音呼叫系统、医用一体化污水处理系统等医疗专项工程的设计及施工;医疗设备的销售、维保等。

陕西安健医特集团股份有限公司始终坚持“以科技为先导”,不断致力于新产品、新技术、新工艺的引进与开发,以建造符合《规范》与《标准》的现代化医院建设为己任。公司拥有完整的测试仪器和专业检测机构合作,为确保每一项工程,每一项技术指标达到要求提供了保障。我们视每一项工程、每一件产品都是“安健医特的形象”。公司将以诚实守信、求真务实、服务至上、开拓创新的精神,创建医院优质工程,与社会各界真诚合作,共创辉煌。
02 资质等级
建筑工程施工总承包三级
机电工程施工总承包三级
建筑装饰装修专业承包二级
消防设施工程专业承包二级
电子与智能化工程专业承包二级
机电安装工程专业承包三级
钢结构工程专业承包三级
环保工程专业承包三级
特种工程专业承包(结构补强)
三类医疗器械经营许可证
二类医疗器械备案
辐射防护材料检测报告
各体系认证!

安健医特.中国
合作咨询:029-89531648
招聘热线:029-89531648
医院整体建设咨询电话:029-83457376
地址:陕西省西安市灞桥区东方国际设计师产业园缤纷新时代1幢10913室

