干细胞移植病房和配套附属洁净用房的空调要求!
时间: 2022-08-20 浏览次数:194
干细胞移植病房和配套附属洁净用房的空调负荷和洁净度要求相差较大,各房间用途和使用时间均不尽相同,整个建筑物空调容量较大,因此用一个洁净空调系统来解决是不合理的。为使洁净空调系统既能保持室内要求参数,而又经济合理,就需要将系统分区。
一、洁净空调方式
1、洁净空调系统分区应考虑的主要因素是:温湿度参数、洁净度的等级、压力梯度、使用时间、空调设备的容量、节能管理等。
2、移植病房和配套附属洁净用房的洁净空调系统应分为二个系统。骨髓移植病房的洁净空调系统应采用一对一的独立空调系统;配套附属洁净用房的洁净空调系统,如护士站、治疗准备前室、洁净区走廊、无菌物品存放、精密仪器室等应采用共用的一个系统。

二、洁净空调系统
移植病房空调系统的方式,主要有两类:一类是新风处理型,由具有冷、热处理功能的新风机组和循环处理机组组成的空调系统;二是新风过滤型,由仅作三级过滤功能的新风机组和空调处理机组组成的空调系统。

01.新风处理型
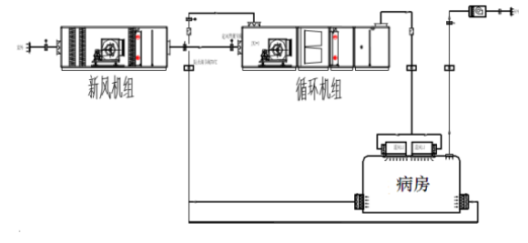
新风处理型是在新风机组中对新风进行热湿处理,承担系统全部新风负荷和部分室内湿负荷,再经循环机组处理后,达到室内要求的温、湿度状态(图1)。其优点是循环机组只承担部分室内冷负荷,处于干工况运行;夏季可以有效避免在循环机组中因冷热抵消带来的能源浪费,可减小循环机组内冷、热盘管的容量,但其缺点是冬季新风机组内盘管在0℃以下低温时容易冻坏,存在安全隐患。

图 新风处理型空调系统
02.新风过滤型
新风过滤型是在新风机组中对新风只进行三级过滤,不进行热湿处理,将净化后的新风送入空调机组内进行热湿处理。其优点是经过过滤的新风进入空调机组与回风混合后,过度季节和冬季可以充分利用新风冷量,不仅减少了过度季节和冬季的冷负荷,有效地实现节能,而且避免了在0℃以下低温时冻坏机组的可能。

图 新风过滤型空调系统
03.对比分析表

新风处理型和新风过滤型对比分析表
04.移植病房净化空调系统

骨髓移植病房净化空调系统
由一对一的变频空调机组、集中式变频新风过滤机组和排风机组组成。集中式新风机组将经过三级过滤后的洁净新风分别送至每间病房的空调机组内,空调机组分别向病房和卫生间送风,保持病房和卫生间、病房和洁净走廊之间有序而稳定的压力梯度。

往期项目回顾
汉滨区第三人民医院影像科——安健医特承建,现已竣工交付投入使用!
01 企业介绍
陕西安健医特集团股份有限公司,位于西安市灞桥区东方国际设计师产业园,主要为客户创建BT、PPP、BOT、BOO、EPC等多种医院整体建设模式;专业从事医院洁净手术部、ICU、CCU病房、血液病房、隔离病房、中心供应室、配液室、实验室等净化工程;医院信息化建设及智能化工程、消防工程、特种结构补强等工程的设计与施工;DSA/CT/DR/数字胃肠/骨密度/C型臂/SPECT/MR等机房射线防护及屏蔽装饰工程;医疗、工业等方面射线防护工程的设计与施工;核医学、同位素射线性污水处理工程;医用集中供氧系统及智能语音呼叫系统、医用一体化污水处理系统等医疗专项工程的设计及施工;医疗设备的销售、维保等。

陕西安健医特集团股份有限公司始终坚持“以科技为先导”,不断致力于新产品、新技术、新工艺的引进与开发,以建造符合《规范》与《标准》的现代化医院建设为己任。公司拥有完整的测试仪器和专业检测机构合作,为确保每一项工程,每一项技术指标达到要求提供了保障。我们视每一项工程、每一件产品都是“安健医特的形象”。公司将以诚实守信、求真务实、服务至上、开拓创新的精神,创建医院优质工程,与社会各界真诚合作,共创辉煌。

02 资质等级
建筑工程施工总承包三级
机电工程施工总承包三级
建筑装饰装修专业承包二级
消防设施工程专业承包二级
电子与智能化工程专业承包二级
机电安装工程专业承包三级
钢结构工程专业承包三级
环保工程专业承包三级
特种工程专业承包(结构补强)
三类医疗器械经营许可证
二类医疗器械备案
辐射防护材料检测报告
各体系认证!

安健医特.中国
合作咨询:029-89531648
招聘热线:029-89531648
医院整体建设咨询电话:029-83457376
地址:陕西省西安市灞桥区东方国际设计师产业园缤纷新时代1幢10913室

