【行业洞察】复合CT手术室建设要求
时间: 2023-02-09 浏览次数:234
复合CT手术室建设要求
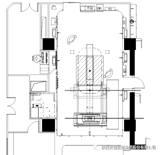
复合CT手术室
一般CT室,是不需要净化空调的,但是复合CT手术室因为涉及到手术,则对洁净度是有要求的。复合CT手术室一般采用两种格局,一种是CT设备安置在手术室中,一种是手术室与CT分开设置。两种格局的设置不同,洁净技术措施上也会稍有不同。

需要一般手术室布置平面及配备辅助设施外,还应配备CT设备机房、设备间、操作间等。建议手术室的尺寸8.5m*6m,操作间尺寸5.5m*3m,设备间尺寸2.5m*2.5m。CT设备放在手术室中,不需要CT设备机房,但是手术室尺寸更大,一般在11m*6m左右。由于设备的要求,手术室顶高度应保持在2.7m-3.5m之间。

复合CT手术室在结构承重、设备防护、门窗防护、配电、空调通风、冷却系统和信息化建设都有特殊的要求,具体如下:
01 承重要求
复合CT设备重量为2900kg左右,地面要求楼板必须有相应的承重能力,可以承载设备的负荷。这就要求在建设手术室前考虑地面的做法,降板等措施良好的利用,避免出现后续不必要的麻烦。
02 设备防护要求
复合CT手术室墙面、地面、顶层必须采用良好的防辐射措施,复合CT设备,防护等级一般为3-4个铅当量,具体防护等级应更具手术室房间面积,楼板厚度,以及设备的具体参数而定。手术间的墙面一般采用铅皮、硫酸钡板进行防护,地面顶层一般通过硫酸钡水泥进行防护。墙面防护时应注意固定防护材料的节点必须采取相应措施,避免射线泄露。
03 电动门防护要求
复合CT手术室采用气密封铅防护感应推拉门。门体防护当量必须与手术室的六面防护等级一致,并且具有气密封功能,保证手术室的压力梯度。
04 配电要求
本设备要求专线供电,电源供电制式为TN-S,电压400v,最大偏差不得超过±10%。频率50Hz,最大偏差不得超过±5Hz。相间电压间的最大偏差不得超过最小相电压的2%。推荐使用专用独立电源变压器。电源变压器至CT机之间最好拉设专用独立电力电缆。

图 复合CT手术室现场地面准备
05 空调要求
1) 一般CT室,是不需要净化空调的,但是复合CT是手术联系在一起的,因此,复合CT做需要净化空调,由于复合CT手术室主要担负以神经外科手术,根据规范要求,手术室净化级别为I级,其余洁净辅助用房则均按照《医院洁净手术部建筑技术规范》(GB50333-2013)的要求进行设计。
2) 送回风口及气流组织:按照《医院洁净手术建筑技术规范》(GB50333-2013)I级洁净手术室的送风天花面积不小于2.4mx2.6m的区域。同时由于手术室面积较大,需要在送风天花外再增加送风口,在手术室长边侧设有下回风口,保证气流组织能分布均匀,以保证室内洁净度符合设计标准。将排风口设置在移动屏蔽门侧,将紊流控制在排风口范围内。

06 冷却系统要求
冷却水管通过CT设备底部沿设备支架敷设,接至手术室外,整个系统包括户内单元、分流加热器、户外单元组成。
07 信息化建设要求
数字化手术室根据医院现实及未来的需要整合了处理所有复杂外科手术所需要的诊断设备和监护设备以及手术设备和工具,在治疗的同时可以通过影像导航和跟踪及时诊断。
《以上内容摘自网络》

往期项目回顾
汉滨区第三人民医院影像科——安健医特承建,现已竣工交付投入使用!
01 企业介绍
陕西安健医特集团股份有限公司,位于西安市灞桥区东方国际设计师产业园,主要为客户创建BT、PPP、BOT、BOO、EPC等多种医院整体建设模式;专业从事医院洁净手术部、ICU、CCU病房、血液病房、隔离病房、中心供应室、配液室、实验室等净化工程;医院信息化建设及智能化工程、消防工程、特种结构补强等工程的设计与施工;DSA/CT/DR/数字胃肠/骨密度/C型臂/SPECT/MR等机房射线防护及屏蔽装饰工程;医疗、工业等方面射线防护工程的设计与施工;核医学、同位素射线性污水处理工程;医用集中供氧系统及智能语音呼叫系统、医用一体化污水处理系统等医疗专项工程的设计及施工;医疗设备的销售、维保等。

陕西安健医特集团股份有限公司始终坚持“以科技为先导”,不断致力于新产品、新技术、新工艺的引进与开发,以建造符合《规范》与《标准》的现代化医院建设为己任。公司拥有完整的测试仪器和专业检测机构合作,为确保每一项工程,每一项技术指标达到要求提供了保障。我们视每一项工程、每一件产品都是“安健医特的形象”。公司将以诚实守信、求真务实、服务至上、开拓创新的精神,创建医院优质工程,与社会各界真诚合作,共创辉煌。

02 资质等级
建筑工程施工总承包三级
机电工程施工总承包三级
建筑装饰装修专业承包二级
消防设施工程专业承包二级
电子与智能化工程专业承包二级
机电安装工程专业承包三级
钢结构工程专业承包三级
环保工程专业承包三级
特种工程专业承包(结构补强)
三类医疗器械经营许可证
二类医疗器械备案
辐射防护材料检测报告
各体系认证!

安健医特.中国
合作咨询:029-89531648
招聘热线:029-89531648
医院整体建设咨询电话:029-83457376
地址:陕西省西安市灞桥区东方国际设计师产业园缤纷新时代1幢10913室

